Plan 3835
Elevations
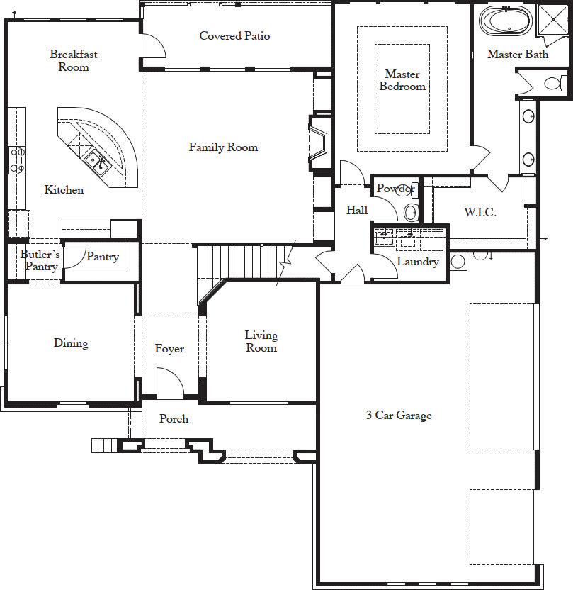
The 3835 new construction floor plan from the Texas Homes Estate Series is a masterpiece of design and flexibility. This versatile 2 to 3-story plan offers the choice of 5 to 6 bedrooms, 3 to 4 full baths, a convenient half bath, a dining room, a spacious living area, a covered patio for outdoor enjoyment, and a generous 3-car garage.
Upon entering, you'll be greeted by a grand two-story foyer and great room that set the stage for elegance and spaciousness. The great room seamlessly flows into the gourmet kitchen and breakfast area, creating an open and inviting atmosphere perfect for both everyday living and entertaining. For added convenience, the dining room can be accessed from the kitchen through a butler's pantry.
The master bedroom, located on the main floor, offers a tranquil retreat with its tray ceiling and leads to the luxurious master bath featuring a standalone tub and a mud-set shower. The secondary bedrooms are thoughtfully situated on the second floor, providing privacy and separation. Additionally, the second floor boasts a large game room for entertainment and relaxation. For those seeking even more flexibility, there's an option for a third-floor media room, accessible through stairs in the game room, and the possibility of adding a casita for multi-generational living. The Texas Homes Estate Series 3835 floor plan offers a harmonious blend of luxury, practicality, and customization to suit your unique lifestyle.
Options
About The Neighborhood
Legend Park
- Beautiful 1+ Acre Homesites
- Gated Community
- No PID Taxes!
- Single-story and Two-story Estate Homes
- Award-winning Floorplans
- 2,568 to 5,300 square feet
- Custom Options Available
29.3481885, -98.9148031
Legend Park is a newly developed residential community in Castroville, Texas, featuring spacious homesites of 1 acre or more. The community offers seven distinct estate home plans, each with up to five available elevations. Plans start at 2,700 square feet and range to over 5,000 square feet. Homeowners will save big because Legend Park has no PID taxes!
Buyers will also have the opportunity to utilize the acclaimed Texas Homes Design Studio, which provides a multitude of choices for flooring, lighting, plumbing, cabinets, fixtures, and other features, allowing them to personalize their home to their liking. Each plan has extensive options so home buyers can customize the plan to fit their lifestyle. Home buyers will also have the opportunity to make custom plan changes and access to the award-winning Texas Homes Design Studio with thousands of choices for flooring, lighting, plumbing, cabinets, fixtures and other features to make the home their own.
Whether you're envisioning a home for a growing family or planning your dream retirement residence, Legend Park has something to offer. With generous homesites set in a tranquil country living environment and convenient access to nearby San Antonio, it caters to a variety of lifestyles.
For those considering a move to the historic Texas town known as "The Little Alsace of Texas," there's much to love. Castroville features shaded streets lined with historic homes and unique businesses, providing a slower pace of life while still enjoying the conveniences of nearby San Antonio.
Nestled along the bend of the Medina River, Castroville boasts excellent schools, charming shops, and a wealth of community activities and events. Outdoor enthusiasts will find ample opportunities at Castroville Regional Park, just minutes away, where they can partake in activities along the Medina River, including camping, swimming, hiking, as well as access to tennis courts, basketball courts, sand volleyball, and more.
For more information, please contact Steve Coker
Model Home
181 Legend Park Drive
Castroville, TX 78009
Model Home Hours
Tue-Sat: 10 AM to 6 PM
or by appointment until 7 PM
Sun-Mon: 12 PM to 6 PM
or by appointment until 7 PM
