Plan 3000
Elevations




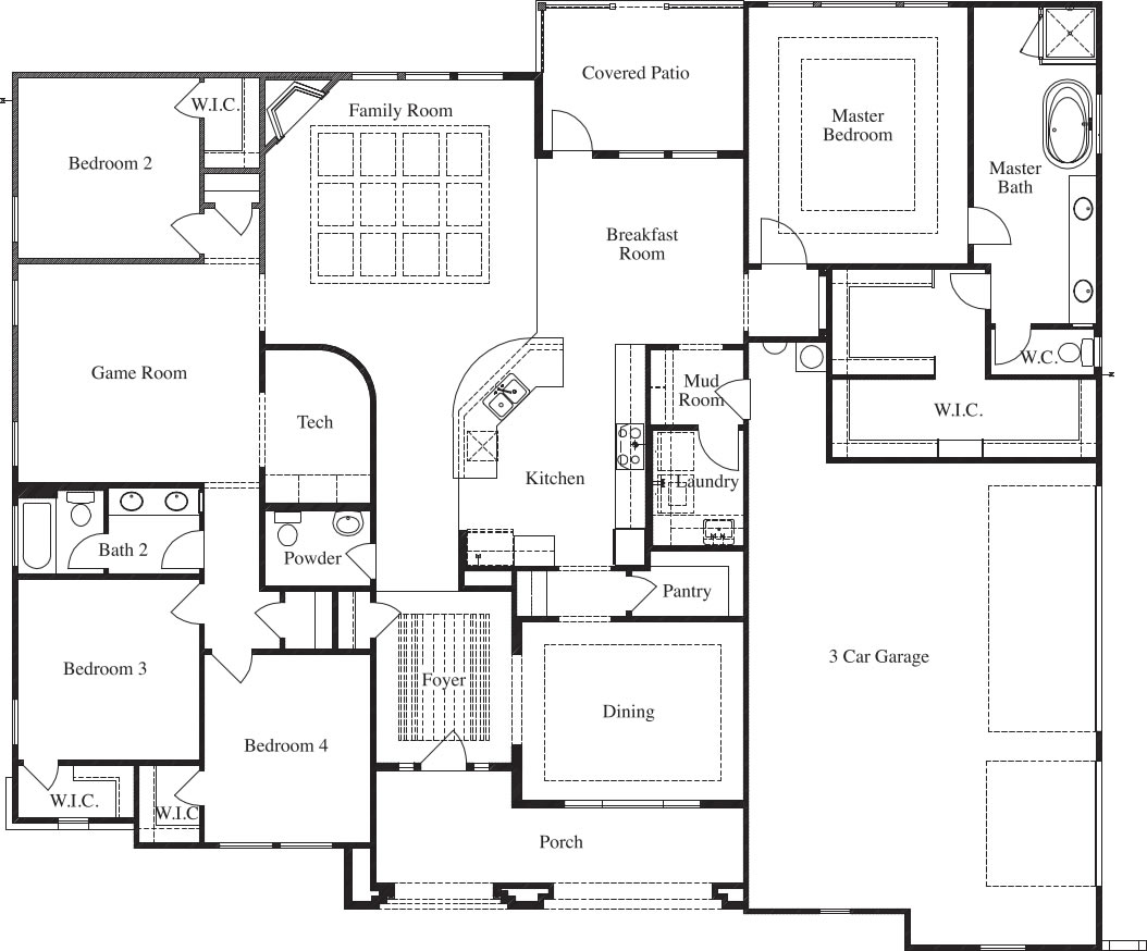
The Texas Homes Estate Series introduces a remarkable new construction floor plan that defines luxurious single-story living. Starting at 3000 square feet, with the option to expand to 3408 square feet through the addition of a second-story game room, this floor plan offers unparalleled flexibility. With a choice of 3 to 5 bedrooms, 2 full baths, a half bath, a game room, a dining room, a covered rear patio, and a spacious 3-car garage with extra storage, it caters to diverse needs and preferences.
As you step into the foyer, you're greeted by a graceful barrel ceiling that seamlessly connects to both the dining room and the great room. The great room is a showstopper with its waffle ceiling and open concept kitchen featuring a generously sized kitchen island. The breakfast area, adjacent to the kitchen, provides the perfect space for casual dining and offers convenient access to the rear covered patio. A butler's pantry adds a touch of elegance and allows easy transition between the kitchen and dining room. The master bedroom is thoughtfully located on the opposite side of the house from the secondary bedrooms, ensuring privacy for all. The master bath is a retreat in itself, complete with a standalone tub, mud-set shower, and an incredibly spacious walk-in closet. With options for a home office, additional bedrooms, and a second-story game room, this floor plan empowers you to customize your home to suit your unique lifestyle. Welcome to the pinnacle of flexibility and luxury in the Texas Homes Estate Series.
Options
About The Neighborhood

Potranco Acres
- Beautiful One-Acre Homesites
- Gated Community
- Convenient to Lackland AFB
- Single-story and Two-story Estate Homes
- Award-winning Floorplans
- 2,568 to 5,300 Square Feet
29.4293913, -98.8569532
Potranco Acres is nestled in the picturesque Texas Hill Country, just a brief drive from San Antonio. This community combines the convenience of nearby urban amenities with easy access to the quaint charm of Castroville, TX, just minutes away.
This gated community boasts custom homes on spacious one-acre plots, allowing residents to relish in the serene beauty of nature and soak in the breathtaking sunset vistas of the Hill Country right from their own backyard, all without a lengthy commute.
Featuring the Texas Homes Estate Series of home plans spanning from 2,568 to 4,408 square feet. These acclaimed designs showcase expansive interiors, lofty ceilings, and inviting outdoor living spaces. Each plan has extensive options so homebuyers can customize the plan to fit their lifestyle. Home buyers will also have the opportunity to make custom plan changes and access to the award-winning Texas Homes Design Studio with thousands of choices for flooring, lighting, plumbing, cabinets, fixtures and other features to make the home their own. The Texas Homes Design Center, staffed by seasoned professionals, will guide homeowners in personalizing their new abode, offering a vast array of colors, materials, and fixtures to choose from.
Model Home:
207 Stone Loop
Castroville, TX 78009
From 1604 go West on Potranco Rd. then left on Stone Loop
MODEL HOME HOURS:
Tue-Sat: 10 AM to 6 PM
or by appointment until 7 PM
Sun-Mon: 12 PM to 6 PM
or by appointment until 7 PM