Plan 3000
Elevations





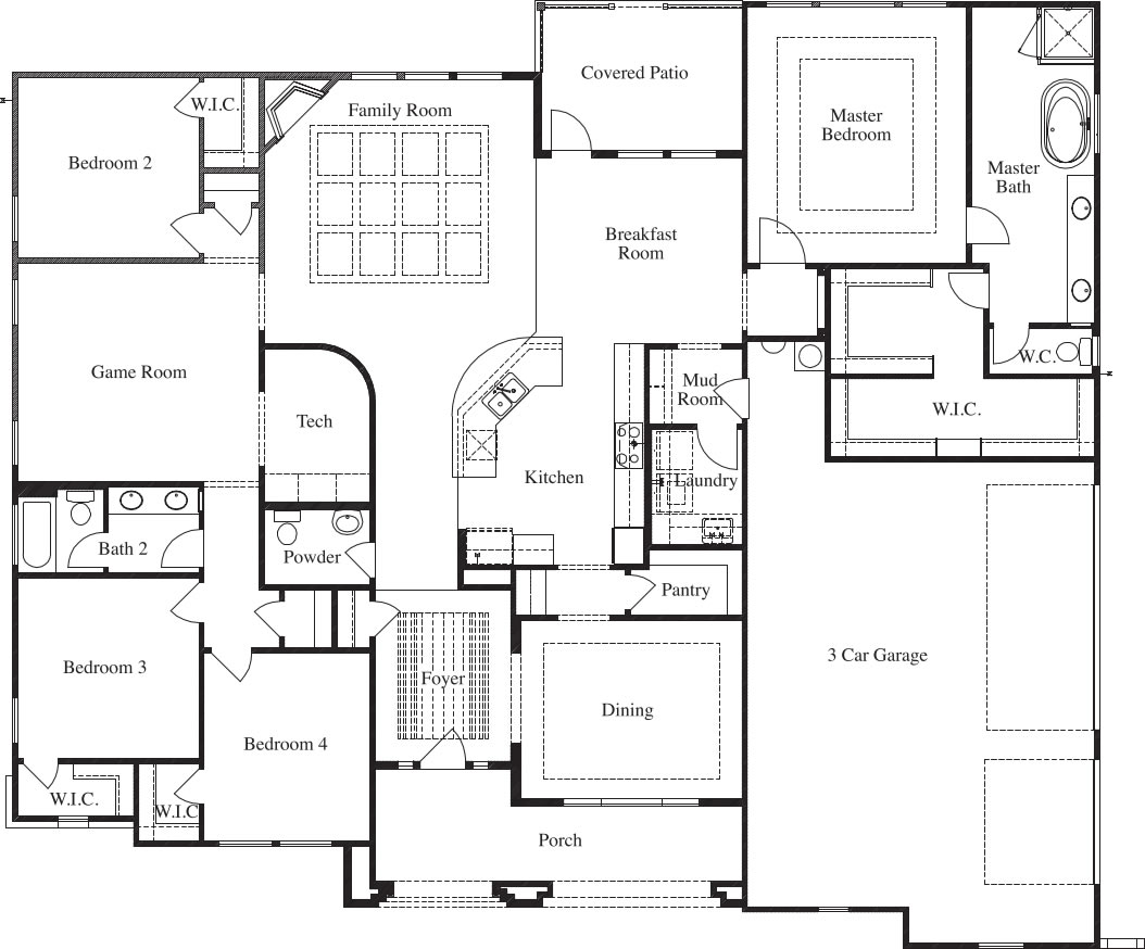
The Texas Homes Estate Series introduces a remarkable new construction floor plan that defines luxurious single-story living. Starting at 3000 square feet, with the option to expand to 3408 square feet through the addition of a second-story game room, this floor plan offers unparalleled flexibility. With a choice of 3 to 5 bedrooms, 2 full baths, a half bath, a game room, a dining room, a covered rear patio, and a spacious 3-car garage with extra storage, it caters to diverse needs and preferences.
As you step into the foyer, you're greeted by a graceful barrel ceiling that seamlessly connects to both the dining room and the great room. The great room is a showstopper with its waffle ceiling and open concept kitchen featuring a generously sized kitchen island. The breakfast area, adjacent to the kitchen, provides the perfect space for casual dining and offers convenient access to the rear covered patio. A butler's pantry adds a touch of elegance and allows easy transition between the kitchen and dining room. The master bedroom is thoughtfully located on the opposite side of the house from the secondary bedrooms, ensuring privacy for all. The master bath is a retreat in itself, complete with a standalone tub, mud-set shower, and an incredibly spacious walk-in closet. With options for a home office, additional bedrooms, and a second-story game room, this floor plan empowers you to customize your home to suit your unique lifestyle. Welcome to the pinnacle of flexibility and luxury in the Texas Homes Estate Series.